



TAMAN PERINDUSTRIAN MERANTI UTAMA - Phase 1 is being developed by Insafoam Gargash Development Sdn Bhd a partnership between owners of Insafoam Insulation, Malaysia and AJG Holdings, United Arab Emirates. The companies bring together over 30 years’ experience in building and project development with completed projects worth over 100 million dollars.
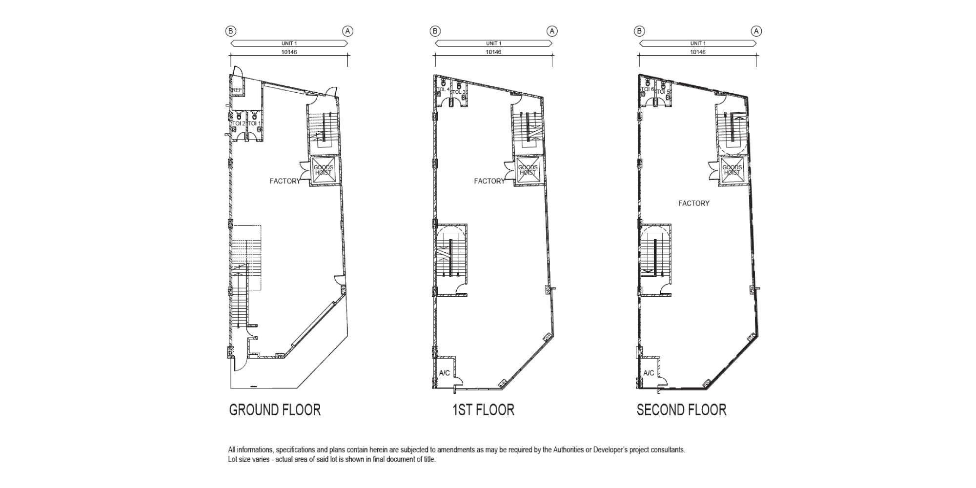
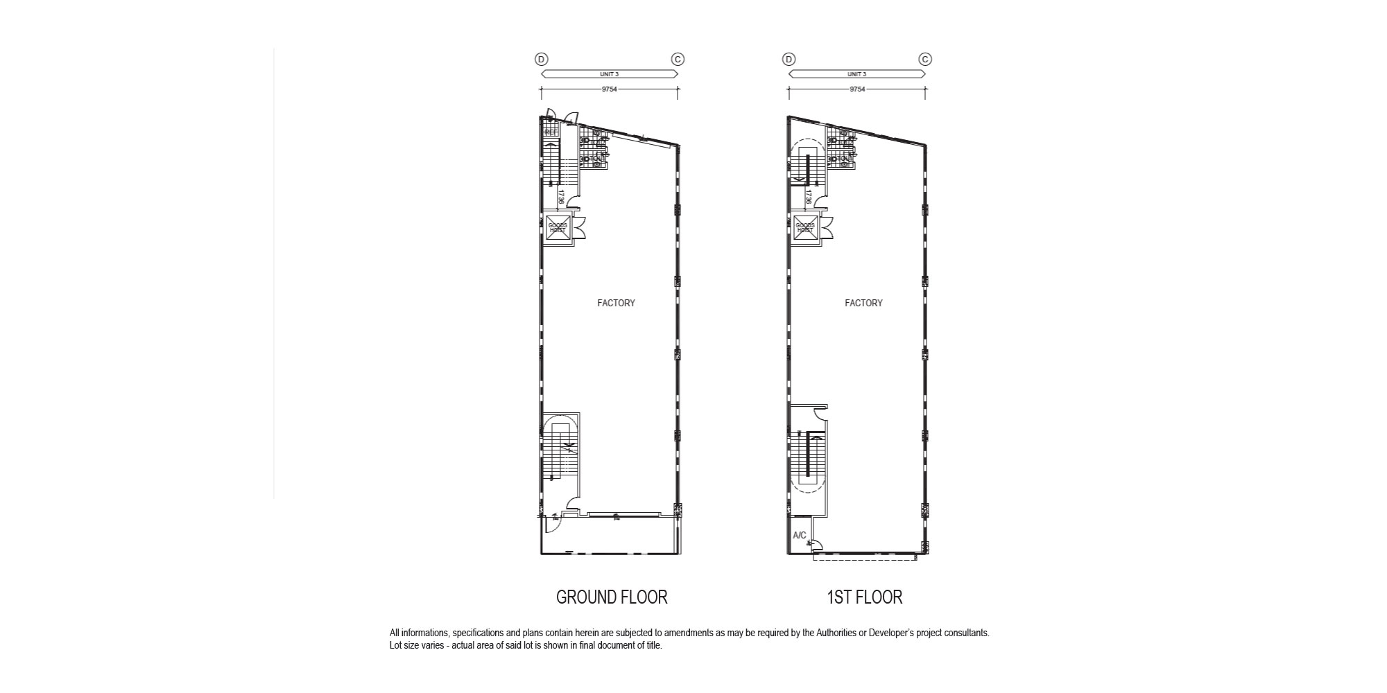
TAMAN PERINDUSTRIAN MERANTI UTAMA - Phase 1 is a Leasehold industrial project completed in Year 2022. This exclusive Industrial Complex will house exclusive units of 2 & 3 storey Super Link Factories, with a gross built-up area of 6,300 to 10,500 square feet per unit.
Ground Floor (12 Units)
First Floor (12 Units)
Second Floor (12 Units)
Unit 1 (Similar layout for unit 1 to 2)
Unit 3 (Similar layout for unit 3 to 12)

The exclusive project is located in Taman Perindustrian Meranti Utama, within the industrial corridor of Puchong, one of the most strategic location in Klang Valley today.
Links to all major road network & highways
Distance to key locations

Kuala Lumpur Sales Office
Lot 11118, Kg. Sungai Rasau,
Batu 8, Pulau Meranti,
47120 Puchong,
Selangor, Malaysia
Tel: +60 3 8060 9929
Hp: +60 19-315 9681
Dubai Sales Office
Bay Square, Building 1, Business Bay,
Dubai, United Arab Emirates.
Tel: +97 1 52 257 9489
Hp: +60 19-315 9681